Now Selling

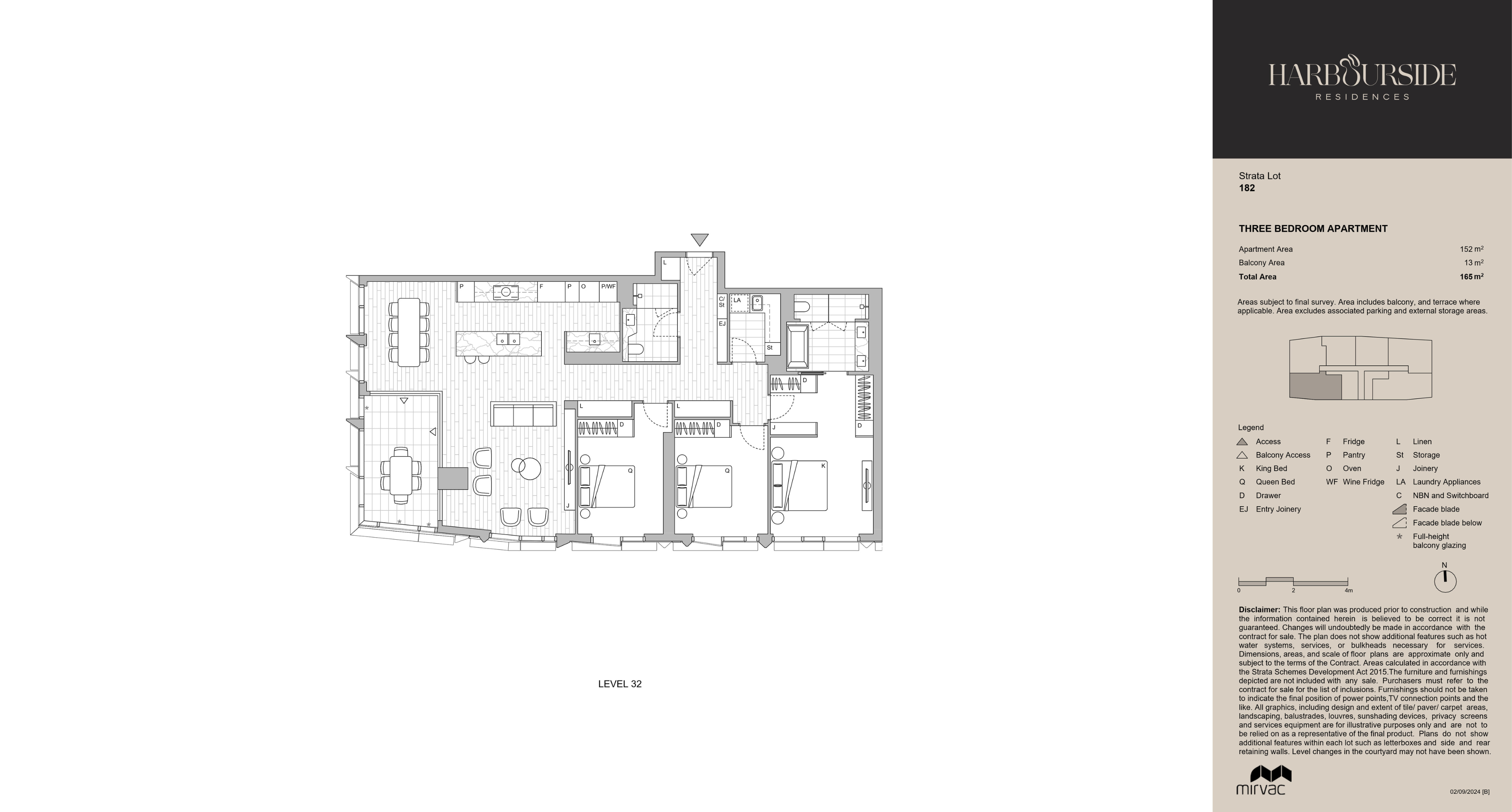
Lot 182

3

2

1

Total area 165M2
Property type Apartment

Harbourside Residences

Project Highlights

Luxury Mirvac residence with sunset views from Anzac Bridge to Blue Mountains

VIEW FLOORPLAN

Gaze out upon breathtaking views from every room of this elegant corner apartment, perched 32 storeys above the Darling Harbour.

The open plan living space, extending to a generous balcony, with Western Harbour views, features an entertainers’ kitchen with natural stone countertops, butler’s pantry and wine fridge, integrated Gaggenau appliances, and custom-designed joinery.

The lavish proportions of the master bedroom offer a sanctuary for private retreat with floor to ceiling windows that frame majestic views, custom-designed joinery and wardrobes and an ensuite with sculpted natural stone double vanity, back to wall bathtub and heated floors.

Two sophisticated finishes palettes, one inspired by the ochre tones of the landscape and the other by the waters lapping on the shore below, curated by leading interior designers Bates Smart, allow you to tailor your home to your own personal style.

Numerous custom-designed inclusions throughout this generously proportioned apartment, with options for further personalisation, add to the rarity of a once in a lifetime opportunity to own perfection on Sydney Harbour.

INTERIORS

- Kitchen with natural stone island and countertops, and custom-designed joinery.
- Gaggenau integrated fridge/freezer and appliances.
- Light and generous open plan living space opening to generous balcony.
- Bespoke feature joinery.
- Master ensuite with natural stone double vanity, custom back to wall bathtub and stone tiled feature wall, underfloor heating, heated towel rails and a smart toilet optional upgrade.
- Engineered timber floors with bespoke design upgrade option to living areas.
- Carpet to bedrooms, with timber floor optional upgrade.
- Smart home technology optional upgrade.

 

 

Privacy collection statement +


Lot 182

8 Darling Drive, Sydney nsw 2000

Chat with us

Harbourside Sales Consultants

02 9080 8888

Harbourside agent photo